Objektart
Adresse
Objektdaten
Informationen
Ausstattung
Details
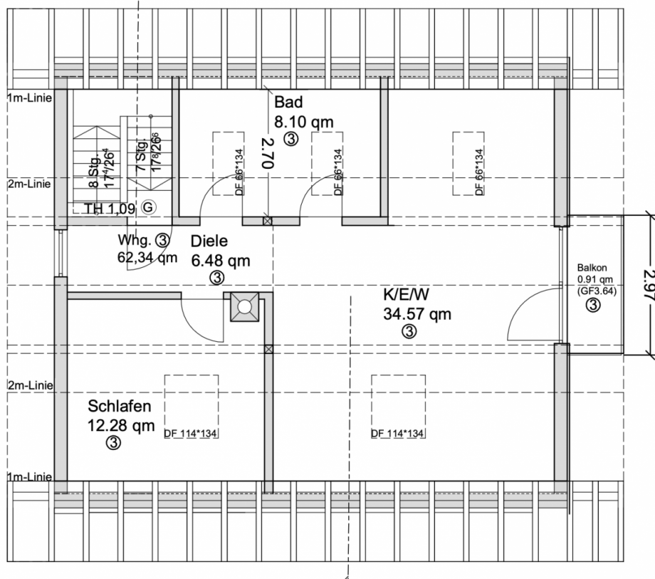
Diese gepflegte und modernisierte Erdgeschosswohnung befindet sich in einem überschaubaren Mehrfamilienhaus mit nur zwei Etagen und überzeugt durch eine angenehme Wohnatmosphäre, eine durchdachte Raumaufteilung sowie attraktive Außenflächen. Das Gebäude wurde im Jahr 1970 errichtet und im Jahr 2025 umfassend modernisiert, wodurch die Immobilie heutigen Wohnansprüchen in vielerlei Hinsicht gerecht wird. Mit einer Wohnfläche von ca. 62 m² bietet die Wohnung eine ideale Größe für Paare oder kleine Familien die sich ein komfortables Zuhause in ruhiger und zugleich gut angebundener Lage wünschen.
Bereits beim Betreten der Wohnung fällt der beeindruckende Flur mit seinen hohen Decken auf, der ein großzügiges Raumgefühl vermittelt und der Wohnung eine besondere Note verleiht.
Das große, helle Wohnzimmer mit offener Küche bildet den zentralen Mittelpunkt der Wohnung. Hier entsteht ein offener Wohn- und Essbereich mit viel Platz zum Leben und Wohlfühlen. Von hier aus gelangen Sie zudem auf den Balkon, der zusätzlichen Raum zum Entspannen im Freien bietet.
Das helle Schlafzimmer bietet ausreichend Platz für ein komfortables Bett und Stauraum und schafft eine ruhige Rückzugsmöglichkeit.
Das moderne Badezimmer ist mit einer Badewanne sowie einem Fenster ausgestattet und überzeugt durch eine angenehme Helligkeit und gute Belüftungsmöglichkeiten.
In den Wohnräumen sorgt Parkettboden für eine warme und wohnliche Atmosphäre, während im Badezimmer pflegeleichte Fliesen verlegt sind. Die Wohnung präsentiert sich insgesamt in einer gepflegten und gehobenen Ausstattungsqualität.
Zur Wohnung gehört außerdem ein eigener Kellerraum, der praktischen Stauraum für Haushaltsgegenstände, Fahrräder oder saisonale Utensilien bietet. Der Außenstellplatz sorgt darüber hinaus für komfortables und unkompliziertes Parken direkt am Haus.
Haben wir Ihr Interesse geweckt? Dann freuen wir uns auf Ihren Anruf und zeigen Ihnen diese schöne Wohnung gerne im Rahmen einer persönlichen Besichtigung. Tel.: 0176/61177607
Ca. 62 m² Wohnfläche
Großes helles Wohnzimmer mit offener Küche
Helles Schlafzimmer
beeindruckender Flur mit hohen Decken
Modernes Badezimmer mit Badewanne und Fenster
Balkon
Eigener Kellerraum mit zusätzlichem Stauraum
Stellplatz direkt am Haus
Parkettboden in den Wohnräumen für eine warme und wohnliche Atmosphäre
Fliesenboden im Badezimmer für eine pflegeleichte Nutzung
Gepflegte und gehobene Ausstattungsqualität
Ruhige Wohnlage in einem überschaubaren Mehrfamilienhaus
Die Immobilie befindet sich in einer ruhigen und gewachsenen Wohnlage der oberbayerischen Gemeinde Otterfing. Das direkte Umfeld ist geprägt von gepflegten Wohnhäusern, viel Grün und einer angenehmen Nachbarschaft, die ein ruhiges und familienfreundliches Wohnumfeld schafft. Spazier- und Radwege sowie weitläufige Wiesen und Felder befinden sich in unmittelbarer Nähe und laden zu Freizeitaktivitäten im Freien ein.
Gleichzeitig profitieren die Bewohner von einer guten Nahversorgung. Einkaufsmöglichkeiten für den täglichen Bedarf, Bäckereien, Restaurants sowie weitere Dienstleister sind in wenigen Minuten erreichbar. Auch Einrichtungen wie Kindergärten, Schulen und medizinische Versorgung befinden sich in der Umgebung. Die Nähe zum Ortszentrum sorgt für eine angenehme Kombination aus ruhigem Wohnen und einer gut erreichbaren Infrastruktur.
Otterfing liegt im oberbayerischen Landkreis Miesbach, nur wenige Kilometer südlich von München, und gehört zu den besonders gefragten Wohnlagen im bayerischen Voralpenland. Die Gemeinde befindet sich nördlich von Holzkirchen und überzeugt durch ihre attraktive Lage zwischen der Landeshauptstadt München und den beliebten Naherholungsgebieten der Alpenregion.
Durch die hervorragende Verkehrsanbindung ist München sowohl mit dem Auto als auch mit der Bahn schnell erreichbar. Gleichzeitig profitieren Bewohner von der Nähe zu zahlreichen Freizeit- und Ausflugszielen wie dem Tegernsee, dem Schliersee oder dem Mangfallgebirge, die innerhalb kurzer Zeit erreichbar sind.
Die Region zeichnet sich durch ihre hohe Lebensqualität aus: Eine reizvolle Landschaft mit sanften Hügeln des Voralpenlandes, eine gewachsene Infrastruktur sowie die Nähe zur wirtschaftsstarken Metropolregion München machen Otterfing zu einem besonders attraktiven Wohnstandort.
Insgesamt bietet die Lage eine ideale Kombination aus naturnahem Wohnen, hoher Lebensqualität und gleichzeitig hervorragender Anbindung an die wirtschaftlichen und kulturellen Angebote der Landeshauptstadt München.
Ansprechpartner
Mobil: +49 176 61177607
t.borufka@alphaus.immo
Energieausweis (Bedarfsausweis)
172,70 kWh / (m²*a) Endenergiebedarf
172,70 kWh / (m²*a) Endenergiebedarf
172,70 kWh / (m²*a) Endenergiebedarf
Weitere Informationen
| Wesentlicher Energieträger | Öl |
| Energieausweis Ausstelldatum | 2024-12-05 |
| Energieausweis gültig bis | 04.12.2034 |
| Energieausweis Jahrgang | ab dem 1.5.2014 |
| Energieausweis Werteklasse | F |
| Energieausweis Baujahr | 1970 |
| Energieausweis Gebäudeart | Wohngebäude |
| Befeuerung | Öl |
Ich bin damit einverstanden, dass mir Karten von Google angezeigt werden. Es gelten die Datenschutzbedingungen von Google (https://policies.google.com/privacy).
Ich bin einverstanden